Logo

Tomáš Salák

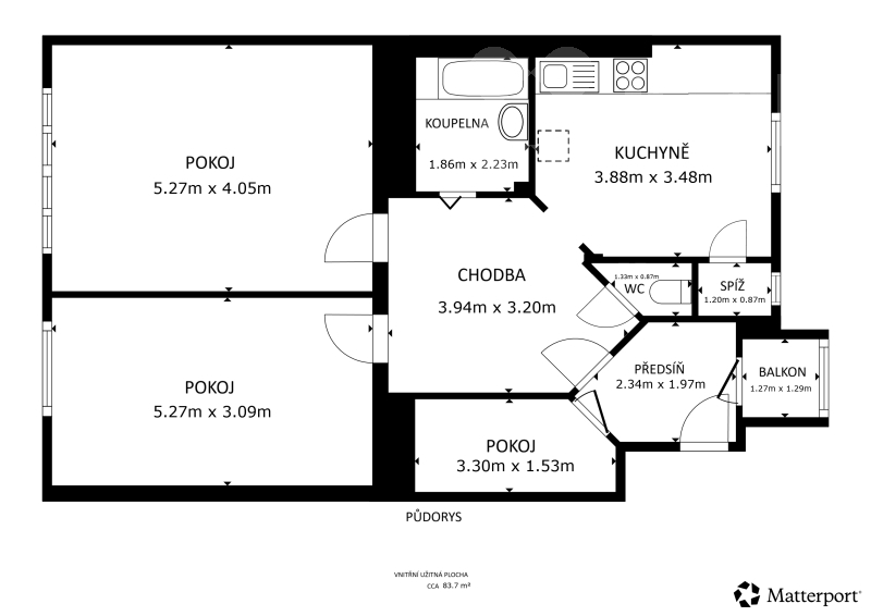
Byt 2+1, 80 m2, Brno

Brno

Popis

Nabízíme k prodeji byt o dispozici 2+1 na ulici Špitálka 5a v Brně Zábrdovicích. Byt se nachází ve zvýšeném přízemí cihlového bytového domu po kompletní rekonstrukci (2012). Dům má plastová okna, zateplenou fasádu, nový výtah, vyměněné stupačky, novou střechu a upravený vnitroblok. Bytová jednotka o velikosti cca 78 m2 disponuje prostornou chodbou, praktickou velkou šatnou, útulným obývacím pokojem, ložnicí, samostatnou kuchyní se špajzem, koupelnou s vanou a samostatným WC. Velkým bonusem je malý balkón, ideální pro ranní kávu nebo chvíli odpočinku. K bytu náleží i velký sklep, kde si můžete uložit i dražší věci, nebo využít i jako dílnu pro kutily. Velkou výhodou jsou nízké provozní náklady. Společenství vlastníků má pravidelný příjem z pronájmu vysílače mobilního operátora (cca 70 tis. Kč ročně), který pokrývá většinu nákladů na údržbu domu. V současnosti se neplánují žádné další opravy ani investice. Lokalita Špitálka prochází dynamickou proměnou - v blízkosti vznikne nábřeží říčky Ponávky s promenádou a otevřeným prostorem, kousek od domu se rozvíjí areál moderních kanceláří Vlněna. Výborná je i dostupnost do centra - hlavní nádraží a Malinovského náměstí v docházkové vzdálenosti. Parkování je možné přímo u domu. Byt je ideální jak pro vlastní bydlení, tak i jako investice s vysokým potenciálem pronájmu díky poloze blízko centra.

7 399 000 Kč

Hypotéční kalkulačka
od 34 318 Kč měsíčně

ID zakázky 3514201
Aktualizace 15. 9. 2025
Druh objektu Zděná
Stav objektu Dobrý
Užitná plocha 80 m2

Kontaktujte mě

K nemovitosti zajistíme

Financování

Financování

Zajistíme nejvýhodnější financování nového domova. Jsme v přímém kontaktu se všemi bankami, kde konzultujeme vaše požadavky a představy. Připravíme vždy několik variant řešení, ze kterých společně vybereme tu nejlepší právě pro vás.

Energie

Energie

Zajistíme nejen výhodný tarif na míru, ale i kompletní přehlášení a administrativu s tím spojenou. Nemusíte se tak o nic starat, potřebné dokumenty a převod zajistíme za Vás.

Interiéry

Interiéry

Naši designéři se postarají, abyste se v novém domě cítili opravdu doma. Změna stávajícího interiéru je pro nás hračka. Ať už chcete zařídit dětský pokoj nebo rovnou celý dům, naši interiéroví designéři Vám pomohou vybrat barvy, sladit váš stávající nábytek nebo navrhnou celý interiér.

Pojištění

Pojištění

Chráníme váš majetek. Ať už potřebujete pojištění ochrany majetku proti požáru či povodni, pojištění proti úrazům nebo neschopnosti splácet, navrhneme vám nejvýhodnější řešení dle vašich potřeb. Pro naše klienty vybíráme to nejlepší z desítek bank a pojišťoven.

Investice

Investice

Uvažujete, kam investovat peníze z prodeje nemovitosti? Investujte s námi tam, kde to dobře známe a získejte možnost zhodnotit své peníze. Máme pro Vás připravenou nabídku investování do nemovitostních projektů s výnosy investičního fondu od 6 % ročně.

Technologie

Technologie

Nabízíme řešení hybridních fotovoltaických elektráren a chytrého bydlení ve spolupráci se společností LOXONE, pro maximální efektivitu a úsporu energií ve vašem novém domově.

Stěhování

Stěhování

Pomůžeme vám ukončit bez starostí i jeden z posledních kroků a rádi vás do nového domova i přestěhujeme.